Villetta da rimodernare con terreno di pertinenza di 11.989 mq
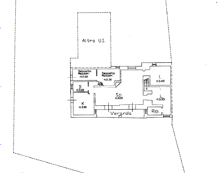
Si propone in vendita in c.da Gravinella, in zona riservata e abitata, villetta da rimodernare, in parte in pietra, con terreno di proprietà esclusiva. Giungiamo all’immobile tramite comoda strada interna privata ed accediamo alla proprietà tramite lo spiazzo esclusivo antistante alla struttura. Internamente la villetta, accedendo dalla veranda, è composta da ampio doppio soggiorno con camino, cucina abitabile con ulteriore camino, due camere da letto, bagno con vasca ed ulteriori due vani attualmente con destinazione deposito. Presenti tre ingressi per accedere all’abitazione e vano scala interno per accedere al terrazzo. Completano la proprietà due locali deposito adiacenti con bagnetto esterno ed il terreno di proprietà esclusiva (con esposizione su tre lati), adibito ad uliveto, di 11.989 mq. Soluzione ideale per qualsiasi tipologia di investimento. Presente cisterna d’acqua, allaccio ad utenza elettrica e condizionatore. Possibilità di acquistare un lotto di terreno inferiore a quello proposto in vendita. CL’G’

